Nom du projet:

Scan 3D d’un bâtiment commercial.

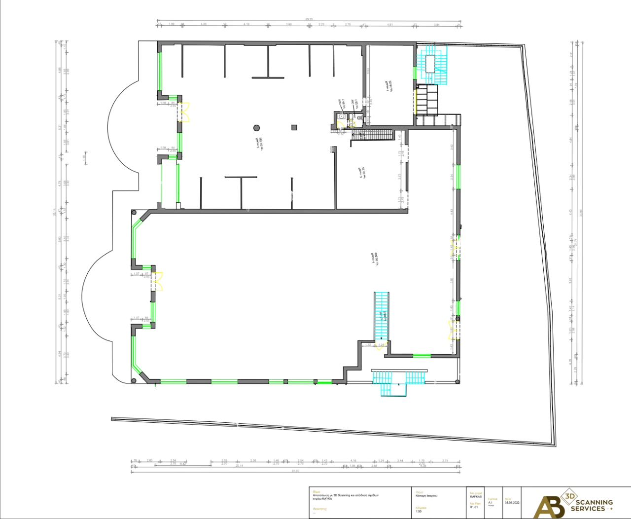
Livrables :

  • Plans d’étage
  • Façades
  • Nuage de points 3D Vidéo

Méthode utilisée :

3D Laser Scanning

Appareil utilisé :

LEICA 3D Scanner 360RTC

Logiciel utilisé :

Cyclone Field, Cyclone Register 360, Cloudworx

Temps sur place / Nombre des setups:

4 heures / 60 setups

Durée totale de livraison du projet :

5 jours

Accuracy

Angular accuracy 18”

Range accuracy:

1.0 mm + 10 ppm

3D point accuracy:

2.9 mm @ 20 m